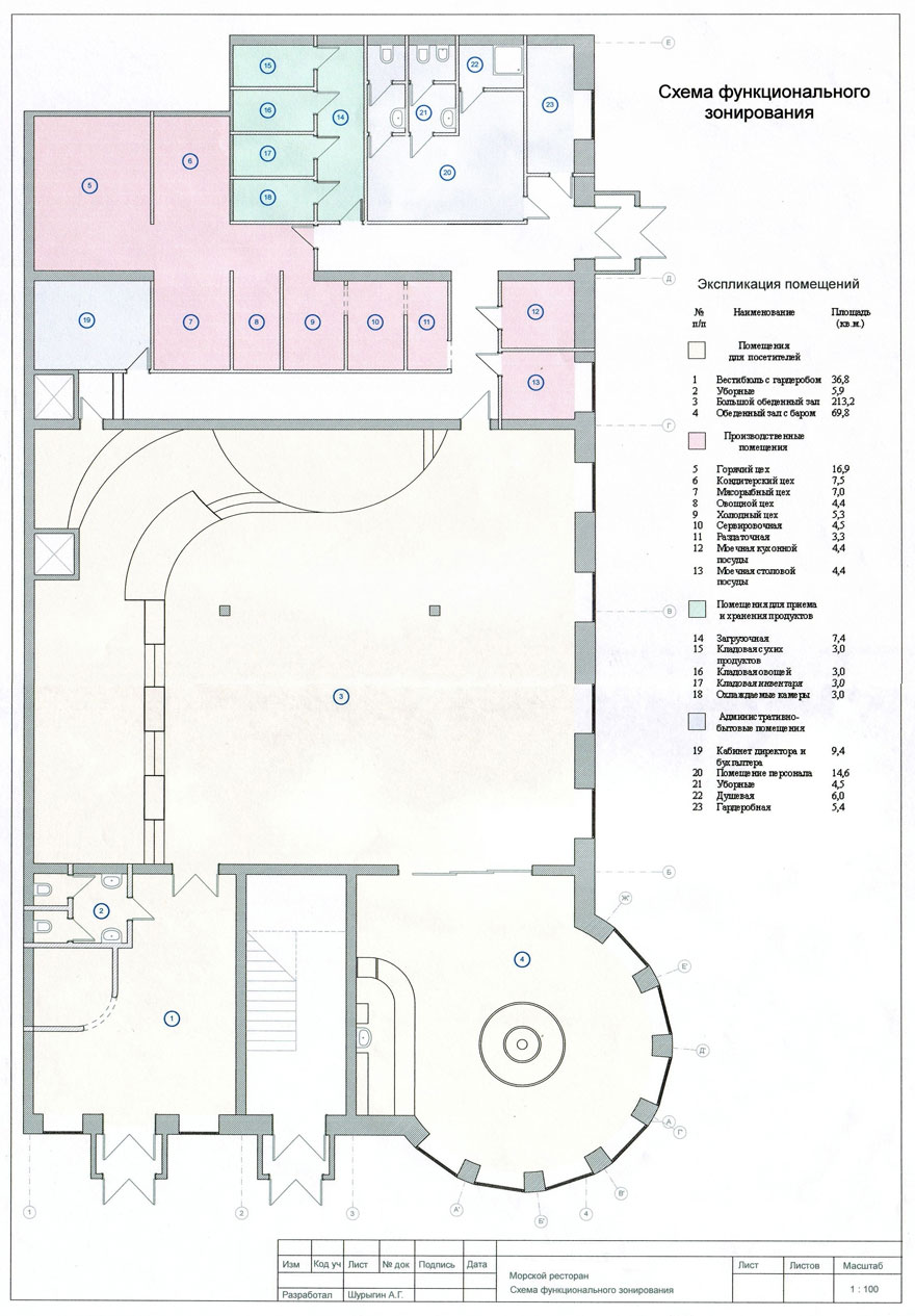
Удалённая работа | Работа фрилансера Шурыгин Алексей [2508] | Функциональное зонирование и экспликация помещений ресторана
-   -
 

Войти на сайт

Забыли пароль? | Регистрация

- Проекты     Фрилансеры     Блоги     Статьи     Сервисы     Инфо-центр     Поиск -

Фрилансер

Шурыгин Алексей Шурыгин Алексей
Дизайн интерьера

Логин: 2508
Активность: 07.09.2013 в 08:08 по мск
Сейчас на сайте: Оффлайн нет
Написать личное сообщение Написать личное сообщение
Добавить в команду Добавить в команду
Подать жалобу Подать жалобу


Функциональное зонирование и экспликация помещений ресторана Категория: Дизайн интерьера

Функциональное зонирование и экспликация помещений ресторана

 
 
 
Предыдущая работа: Пан монтажа перегородок, окон и дверей Следующая работа: План полов

Переход между работами данного фрилансера возможен также с помощью стрелок влево и вправо при зажатой клавише Ctrl.
 
-   -
© 2006-2026 Free-lancers.net
Фрилансеры. Удалённая работа.
В ожидании чуда - 26.06.2026 в 14:04
admin@free-lancers.net
     

Rambler's Top100
О проекте | Обратная связь