Удалённая работа | Работа фрилансера Наумов Дмитрий [Dnaumov] | система СКС этажа
-   -
 

Войти на сайт

Забыли пароль? | Регистрация

- Проекты     Фрилансеры     Блоги     Статьи     Сервисы     Инфо-центр     Поиск -

Фрилансер

Наумов Дмитрий Наумов Дмитрий
Промышленный дизайн

Логин: Dnaumov
Активность: 27.02.2012 в 06:33 по мск
Сейчас на сайте: Оффлайн нет
Написать личное сообщение Написать личное сообщение
Добавить в команду Добавить в команду
Подать жалобу Подать жалобу


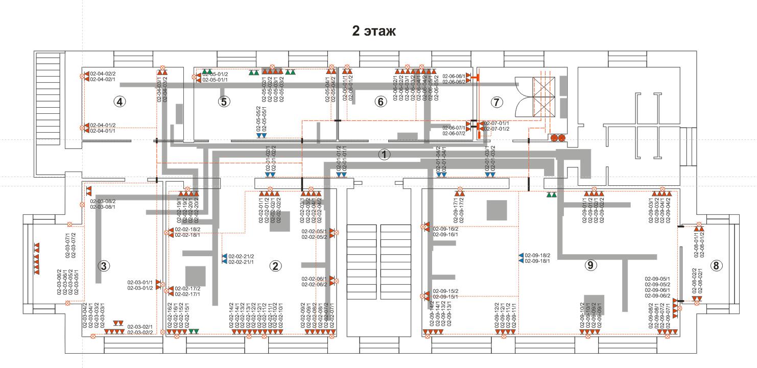
система СКС этажа Категория: Промышленный дизайн

система СКС этажа

 
Описание:
Один из этажей здания. Основная работа.
Готов выполнять работы из сферы этажного проектирования, компьютерных сетей, силовых сетей

 
 

Переход между работами данного фрилансера возможен также с помощью стрелок влево и вправо при зажатой клавише Ctrl.
   
Комментарии к работе (0):

Комментарии к данной работе отсутствуют.

 
-   -
© 2006-2026 Free-lancers.net
Фрилансеры. Удалённая работа.
В ожидании чуда - 26.06.2026 в 14:04
admin@free-lancers.net
     

Rambler's Top100
О проекте | Обратная связь