Удалённая работа | Работа фрилансера Голуб Наталья [Gysenka] | План коммуникаций "Дом на склоне"
-   -
 

Войти на сайт

Забыли пароль? | Регистрация

- Проекты     Фрилансеры     Блоги     Статьи     Сервисы     Инфо-центр     Поиск -

Фрилансер

Голуб Наталья Голуб Наталья
Ландшафтный дизайн

Логин: Gysenka
Активность: 02.09.2019 в 19:35 по мск
Сейчас на сайте: Оффлайн нет
Написать личное сообщение Написать личное сообщение
Добавить в команду Добавить в команду
Подать жалобу Подать жалобу


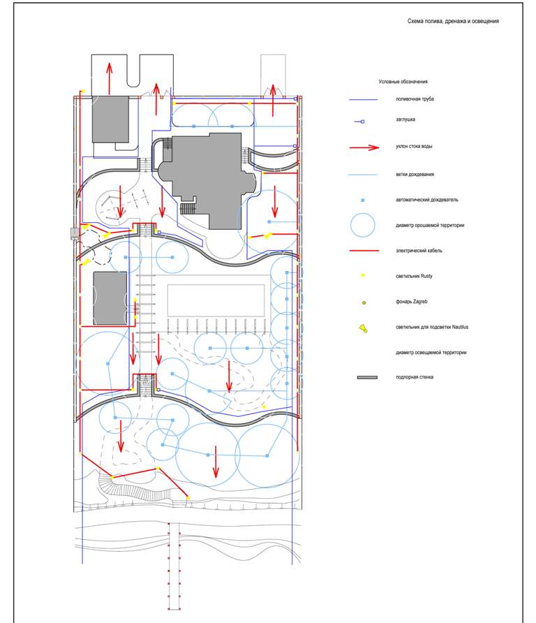
План коммуникаций "Дом на склоне" Категория: Ландшафтный дизайн

План коммуникаций "Дом на склоне"

 
 
 
Предыдущая работа: Дендроплан "Дом на склоне" Следующая работа: Посадочный чертёж "Дом на склоне"

Переход между работами данного фрилансера возможен также с помощью стрелок влево и вправо при зажатой клавише Ctrl.
 
-   -
© 2006-2026 Free-lancers.net
Фрилансеры. Удалённая работа.
В ожидании чуда - 26.06.2026 в 14:04
admin@free-lancers.net
     

Rambler's Top100
О проекте | Обратная связь