Удалённая работа | Работа фрилансера Иткинд Ирина [Iritkind] | Ухта фирменный магазин
-   -
 

Войти на сайт

Забыли пароль? | Регистрация

- Проекты     Фрилансеры     Блоги     Статьи     Сервисы     Инфо-центр     Поиск -

Фрилансер

Иткинд Ирина Иткинд Ирина
Брендинг

Логин: Iritkind
Активность: 26.08.2011 в 22:54 по мск
Сейчас на сайте: Оффлайн нет
Написать личное сообщение Написать личное сообщение
Добавить в команду Добавить в команду
Подать жалобу Подать жалобу


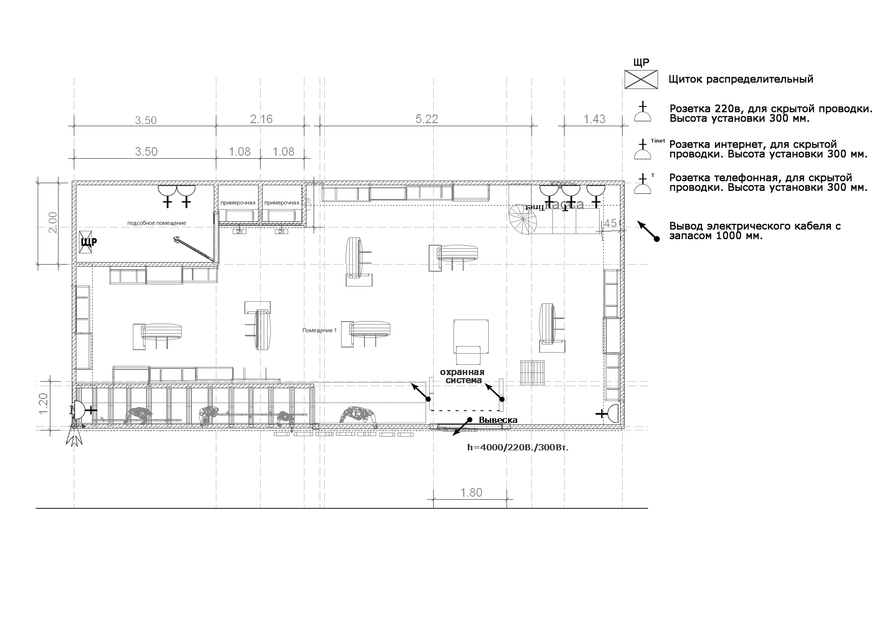
Ухта фирменный магазин Категория: Дизайн интерьера

Ухта фирменный магазин

 
Описание:
Планировка, расстановка оборудования, схема по электрике и освещению.

 
 
Предыдущая работа: Кострома фирменный магазин Следующая работа: Томск - расстановка оборудования

Переход между работами данного фрилансера возможен также с помощью стрелок влево и вправо при зажатой клавише Ctrl.
 
-   -
© 2006-2026 Free-lancers.net
Фрилансеры. Удалённая работа.
В ожидании чуда - 26.06.2026 в 14:04
admin@free-lancers.net
     

Rambler's Top100
О проекте | Обратная связь