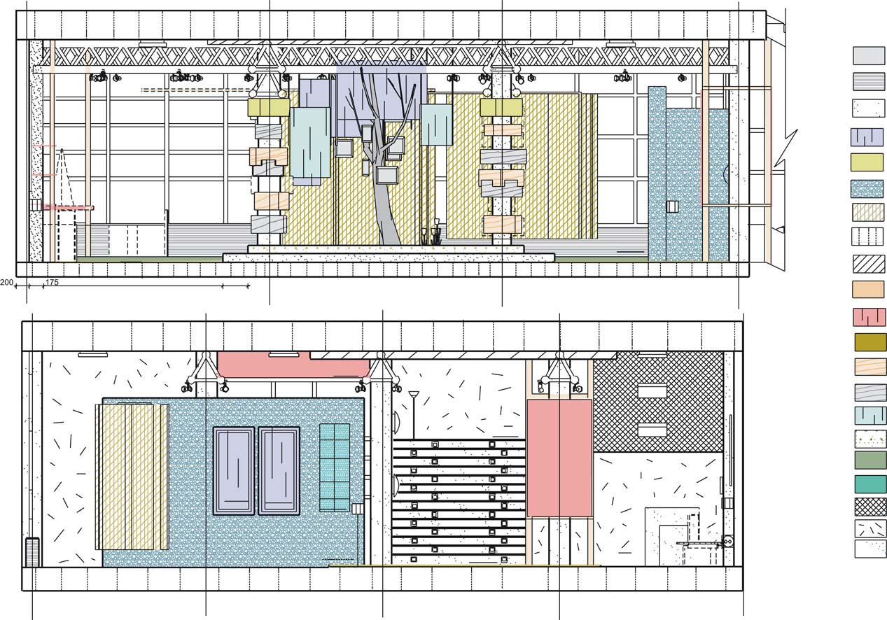
Удалённая работа | Работа фрилансера Данилова-Сироткина Людмила [Liudmila] | Развертка выставочного зала
-   -
 

Войти на сайт

Забыли пароль? | Регистрация

- Проекты     Фрилансеры     Блоги     Статьи     Сервисы     Инфо-центр     Поиск -

Фрилансер

Данилова-Сироткина Людмила Данилова-Сироткина Людмила
Дизайн интерьера

Логин: Liudmila
Активность: 30.09.2011 в 02:06 по мск
Сейчас на сайте: Оффлайн нет
Написать личное сообщение Написать личное сообщение
Добавить в команду Добавить в команду
Подать жалобу Подать жалобу


Развертка выставочного зала Категория: Дизайн интерьера

Развертка выставочного зала

 
 
 
Предыдущая работа: План расстановки мебели Следующая работа: Развертка выставочного зала

Переход между работами данного фрилансера возможен также с помощью стрелок влево и вправо при зажатой клавише Ctrl.
   
Комментарии к работе (0):

Комментарии к данной работе отсутствуют.

 
-   -
© 2006-2026 Free-lancers.net
Фрилансеры. Удалённая работа.
В ожидании чуда - 26.06.2026 в 14:04
admin@free-lancers.net
     

Rambler's Top100
О проекте | Обратная связь