Удалённая работа | Работа фрилансера Serebrovsky Sergey [Serebrovsky] | частный жилой дом "дом на столбах"
-   -
 

Войти на сайт

Забыли пароль? | Регистрация

- Проекты     Фрилансеры     Блоги     Статьи     Сервисы     Инфо-центр     Поиск -

Фрилансер

Serebrovsky Sergey Serebrovsky Sergey
Дизайн интерьера

Логин: Serebrovsky
Активность: 24.04.2019 в 05:24 по мск
Сейчас на сайте: Оффлайн нет
Написать личное сообщение Написать личное сообщение
Добавить в команду Добавить в команду
Подать жалобу Подать жалобу


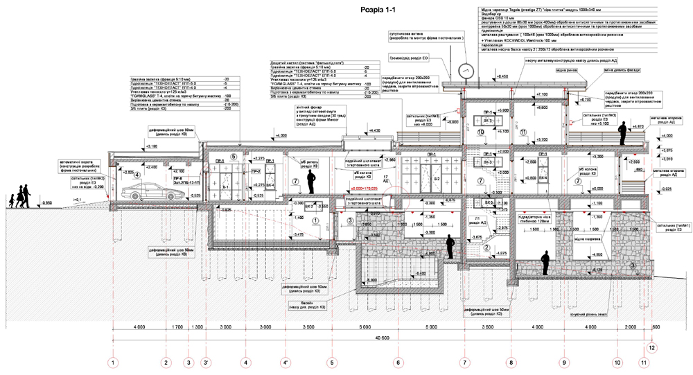
частный жилой дом "дом на столбах" Категория: Дизайн интерьера

частный жилой дом "дом на столбах"

 
Описание:
все стадии проектирования (ЭП, П, РД) г. Киев (ТАМ "Степанов")
архитекторы: Степанов С., Серебровский С.

 
 
Предыдущая работа: частный жилой дом "дом на столбах" Следующая работа: частый жилой дом "дом на столбах"

Переход между работами данного фрилансера возможен также с помощью стрелок влево и вправо при зажатой клавише Ctrl.
   
Комментарии к работе (0):

Комментарии к данной работе отсутствуют.

 
-   -
© 2006-2026 Free-lancers.net
Фрилансеры. Удалённая работа.
В ожидании чуда - 26.06.2026 в 14:04
admin@free-lancers.net
     

Rambler's Top100
О проекте | Обратная связь