Удалённая работа | Работа фрилансера Смилянская Анна [annasmil] | Реконструкция. Детский сад в Сокольниках.
-   -
 

Войти на сайт

Забыли пароль? | Регистрация

- Проекты     Фрилансеры     Блоги     Статьи     Сервисы     Инфо-центр     Поиск -

Фрилансер

Смилянская Анна Смилянская Анна
Дизайн интерьера

Логин: annasmil
Активность: 14.11.2009 в 17:44 по мск
Сейчас на сайте: Оффлайн нет
Написать личное сообщение Написать личное сообщение
Добавить в команду Добавить в команду
Подать жалобу Подать жалобу


Реконструкция. Детский сад в Сокольниках. Категория: Дизайн интерьера

Реконструкция. Детский сад в Сокольниках.

 
Описание:
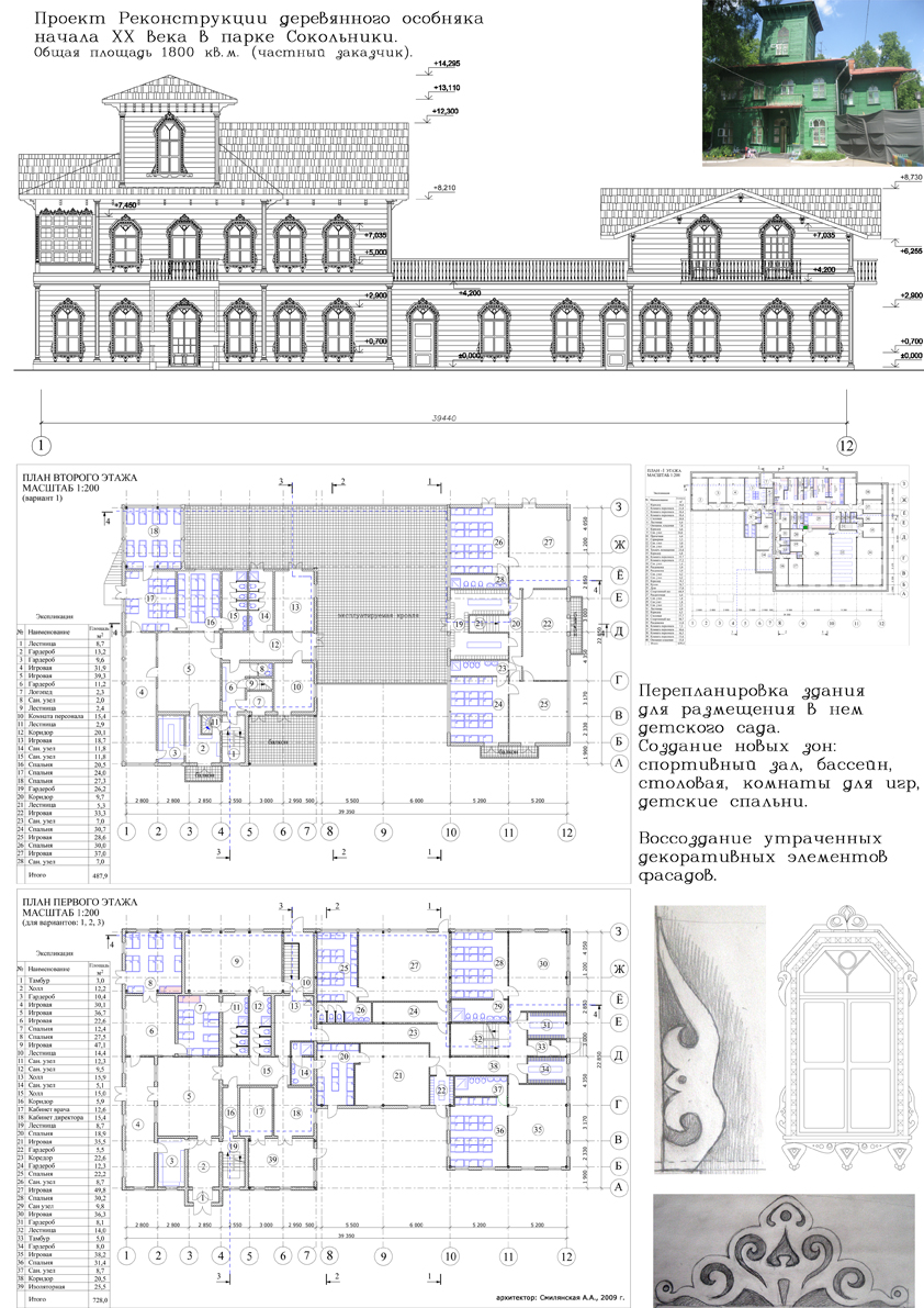
Реконструкция особняка начала ХХ века, воссоздание утраченного декора здания.

 
 
Следующая работа: Загородный жилой дом.

Переход между работами данного фрилансера возможен также с помощью стрелок влево и вправо при зажатой клавише Ctrl.
   
Комментарии к работе (0):

Комментарии к данной работе отсутствуют.

 
-   -
© 2006-2026 Free-lancers.net
Фрилансеры. Удалённая работа.
В ожидании чуда - 26.06.2026 в 14:04
admin@free-lancers.net
     

Rambler's Top100
О проекте | Обратная связь