Удалённая работа | Работа фрилансера Melnichenko Vladimir [arch_design] | Проект интерьера жилого дома
-   -
 

Войти на сайт

Забыли пароль? | Регистрация

- Проекты     Фрилансеры     Блоги     Статьи     Сервисы     Инфо-центр     Поиск -

Фрилансер

Melnichenko Vladimir Melnichenko Vladimir
Дизайн интерьера

Логин: arch_design
Активность: 09.10.2024 в 16:29 по мск
Сейчас на сайте: Оффлайн нет
Написать личное сообщение Написать личное сообщение
Добавить в команду Добавить в команду
Подать жалобу Подать жалобу


Проект интерьера жилого дома Категория: 3D Графика

Проект интерьера жилого дома

 
Описание:
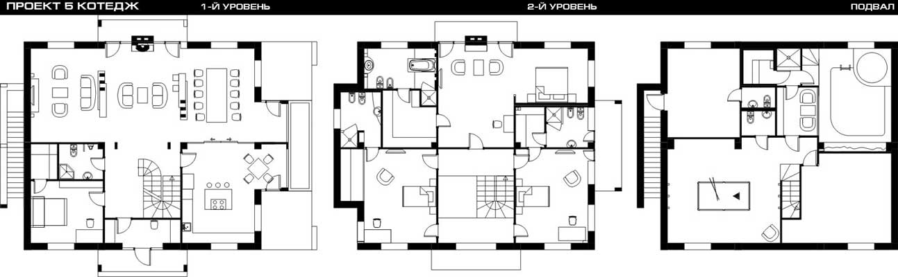
Планировка

 
 
Предыдущая работа: Проект интерьера квартиры 1 Пентхауз Следующая работа: Проект интерьера жилого дома

Переход между работами данного фрилансера возможен также с помощью стрелок влево и вправо при зажатой клавише Ctrl.
   
Комментарии к работе (0):

Комментарии к данной работе отсутствуют.

 
-   -
© 2006-2026 Free-lancers.net
Фрилансеры. Удалённая работа.
В ожидании чуда - 26.06.2026 в 14:04
admin@free-lancers.net
     

Rambler's Top100
О проекте | Обратная связь