Войти на сайт
Логин:
запомнить меня
Пароль:
Забыли пароль?
|
Регистрация
Проекты
Фрилансеры
Блоги
Статьи
Сервисы
Инфо-центр
Поиск
Фрилансер
Зубкова Мария
Дизайн интерьера
Логин:
mashazooo
Активность:
14.01.2015 в 16:20 по мск
Сейчас на сайте:
нет
Написать личное сообщение
Добавить в команду
Подать жалобу
портфолио
услуги
отзывы
информация
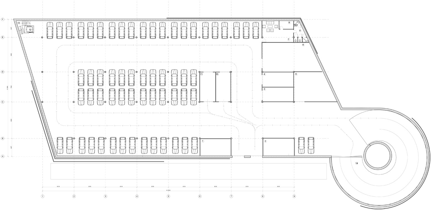
Проект гаража-стоянки на 300 машин. план 1 этажа
Категория:
Дизайн интерьера
Предыдущая работа:
Проект гаража-стоянки на 300 машин. план 2,3,4 этажей
Следующая работа:
Проект гаража-стоянки на 300 машин
Переход между работами данного фрилансера возможен также с помощью стрелок влево и вправо при зажатой клавише Ctrl.
Комментарии к работе (0):
Комментарии к данной работе отсутствуют.
© 2006-
2026
Free-lancers.net
Фрилансеры. Удалённая работа.
В ожидании чуда -
26.06.2026
в
14:04
admin@free-lancers.net
О проекте
|
Обратная связь